Verkocht
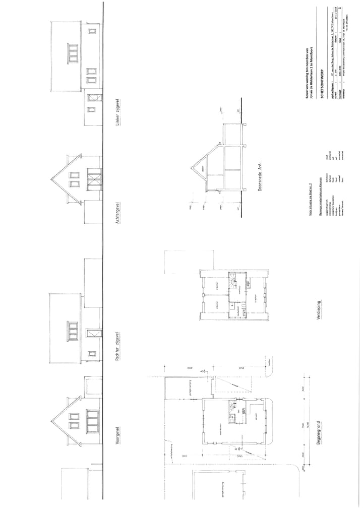
Johan de Ridderlaan 13417 CE MontfoortTabakshof en Heeswijk (gedeeltelijk)
€ 250.000 k.k.
Kaart
- 255 m²
Verkoopgeschiedenis
- Aangeboden sinds
- 31 januari 2024
- Verkoopdatum
- 16 december 2024
- Looptijd
- 10½ maand
Omschrijving
Advertentie
Kenmerken
Populariteit
24.674x
Bekeken
201x
Bewaard
31-1-2024
Op Funda
Buurt
Ontdek de buurt
Benieuwd naar het woningaanbod, bewoners en lokale makelaars?
Wil je dit huis niet vergeten?
Bewaar het als favoriet. Dan vind je ’m makkelijk terug en krijg je een seintje bij veranderingen.




